深井浪濤灣

原平面圖

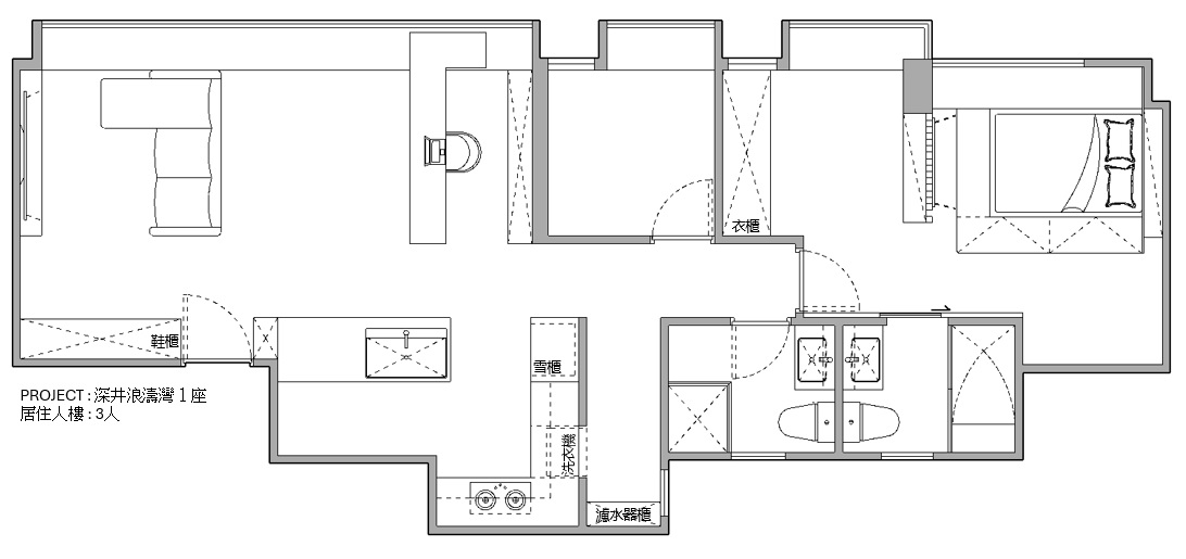
新佈局圖
單位地址: 深井浪濤灣1座
單位面積: 739呎
居住人數: 2人
單位原本3房2廁1儲物房,裝修風格以現代風格為主,配以木紋色調融入設計內。
由於單位面向海,客人希望打造出一個自然舒適的居家空間。
廚房與儲物室為同一個空間,將兩個間隔改造為開放式廚房及洗衣房,活用空間之餘更可令自然光帶入廚房。客廳放了一張大型書枱,背後有一組大型展示櫃可以展放客人收藏的結他,除了可展示自己的愛好,連同開放式廚房今入屋空間感大增。
主人房打通了另一間客房,增大面積令主人房可多出一個空間做衣帽間,衣帽間用木條子作間隔,令風格及視覺空間感增強。
營造空間感及活用單位自然光是今次設計的目的,加上現代風格簡單俐落大方,打造出自然舒適的感覺。
