何民田俊民苑文福閣

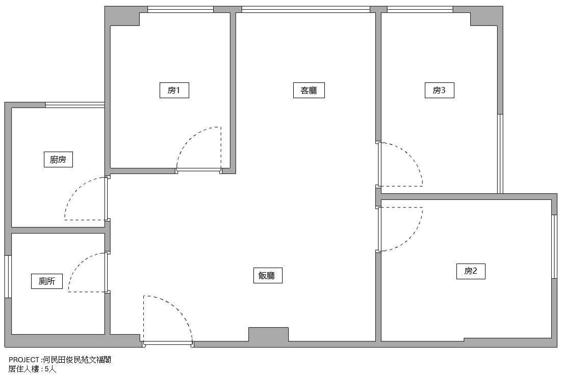
原平面圖

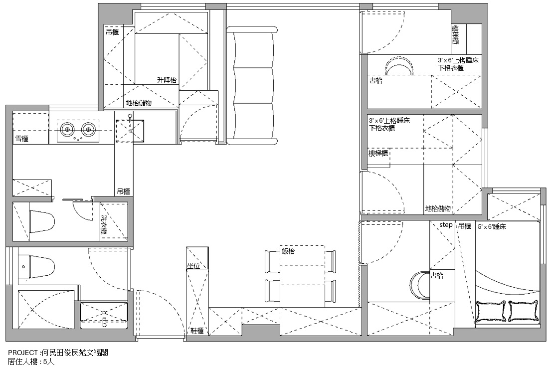
新佈局圖
單位地址:何文田俊民苑文福閣
單位面積:554呎
居住人數:5人
原有間隔為3房1廁1廚。為切合五人家庭需要,透過精準規劃善用每一平方呎,在兼顧公共與私人空間的前提下,新增一個廁所及一間活動室,同時改善通風、採光及收納。設計以無印簡約風為主軸,運用留白、自然材質及柔和色調,營造靜謐舒適、減輕壓迫與雜亂感的居住氛圍,打造適合長時間停留的理想家居。
在不影響結構安全下,重新劃分房間及空間配置,規劃出第二間廁所,有效紓緩早晚尖峰使用壓力。活動室鄰近公共空間,可作閱讀區、兒童遊戲區或多功能工作間,並可轉換為臨時客房或興趣空間,讓五人家庭在同一屋簷下仍保有彈性與私隱,提升生活便利與舒適度。
整體色調以白色、米色及淺木色為主,配合俐落收納櫃,減少視覺干擾,營造明亮開揚感。公共空間採開放式設計,讓光線自然流動,客飯廳連貫通透,增強家庭互動。透過系統櫃及壁面收納,有效整理書本、玩具及家電等物品,維持空間整潔,並方便日後按需要調整收納模組。
主人房以柔和燈光及適度留白為主調,配合實用衣櫃及床下收納,兼顧休息品質與日常機能,讓每位家庭成員享有獨立而舒適的私人空間。
房2配置上下格床及衣櫃,方便外傭照顧年紀較小的妹妹,同時提升儲物容量。
房3為在學中的哥哥而設,採用上床下衣櫃及書枱設計,兼顧學習及收納需要。
活動室採地台設計,大幅提升儲物容量,可收納季節性物品、行李箱及大型雜物,並可因應不同生活階段,靈活作自修區、親子共讀角落或居家辦公區,讓單位在有限面積內仍具高度變化及長遠彈性。
