屯門兆畦苑兆富閣

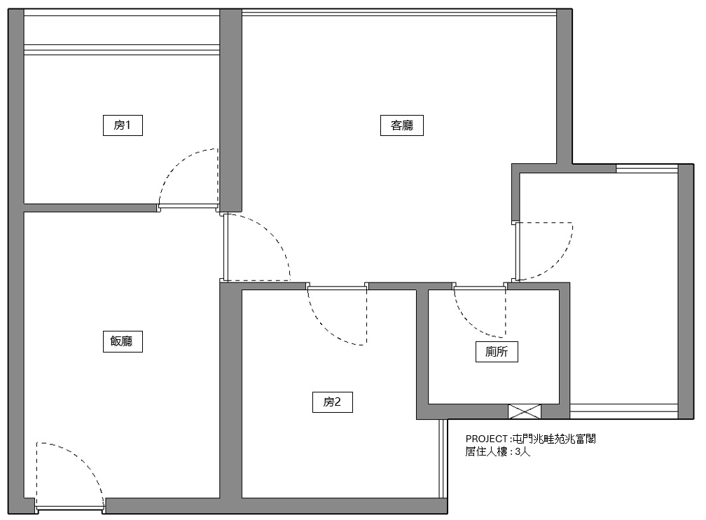
原平面圖

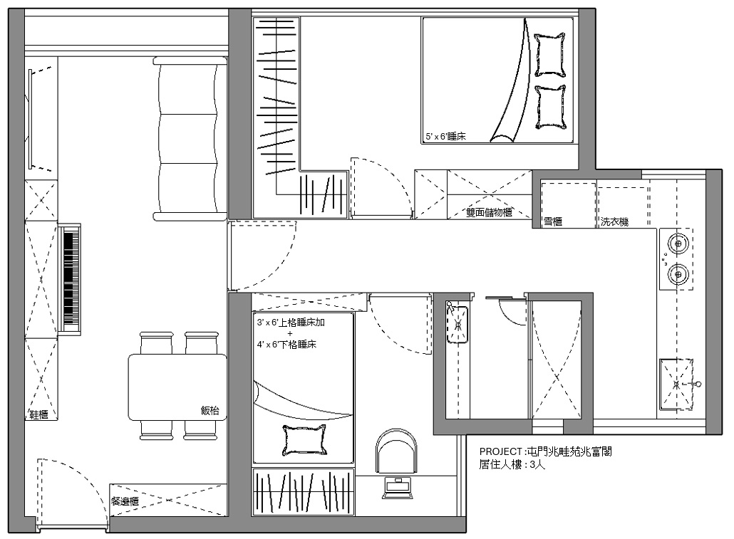
新佈局圖
單位地址: 屯門兆畦苑兆富閣
單位面積: 556呎
居住人數: 3人
此設計以三人家庭為藍本,透過重整房間間隔位置,明確劃分公共及私人空間,同時保持整體通透感與一致性。以無印風為主調,運用簡約線條、柔和色調及實用收納,打造舒適、整潔而具生活質感的家居環境。
客廳及飯廳採用一線型開放式設計,令自然光可直接穿透兩個空間,提升採光及空間感。以簡約家具收納為主,減少視覺阻隔,營造寬敞明亮的公共區域。走廊位置以暗門隱藏,令牆面更完整俐落,視覺上更統一。
主人房以雙面間隔櫃作為空間分界,一邊可擺放公共物品,另一邊則用作私人收納,兼具間隔與儲物功能。加大的主人房不但可容納更寬闊的睡床,亦大幅提升儲物容量,讓女主人的收藏品有系統地展示,同時保持房間整潔有序。
小孩房以傢俬作間隔,增加衣物、玩具及書本的收納空間,培養良好整理習慣。書枱靠近窗戶擺放,讓小孩在閱讀及書寫時享受充足自然光,有助專注與視力保護,並延續全屋明亮自然的設計理念。
兩間睡房均採用暗門設計,將房門融入牆面,減少門框及門扇對視覺的干擾。即使有客人需要使用洗手間,公共區域仍能保持簡潔一致的牆面效果,強化無印風的低調、純淨與整體感。
整體設計以實用收納、自然光運用及隱藏式細節為核心,為三人家庭打造兼具美感與機能的無印風居住空間。
