將軍澳維景灣畔

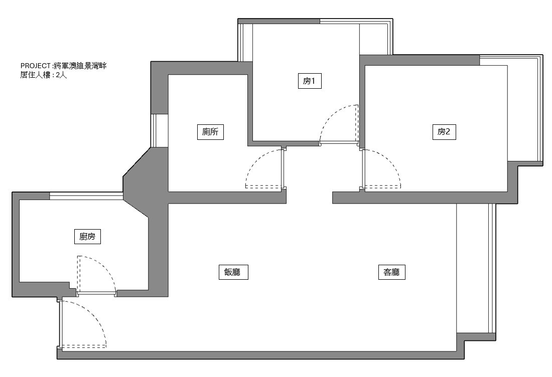
原平面圖

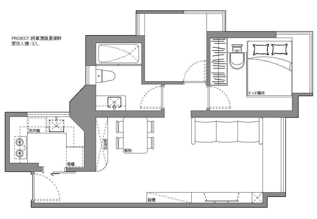
新佈局圖
單位地址: 將軍澳維景灣畔1座
單位面積: 504呎
居住人數: 2人
單位戶主為年輕夫婦,面向開揚海景,自然光充足,整體以無主燈無印風設計為主軸,營造簡約、柔和而舒適的居住氛圍。設計重視光線與空間感,透過低調線條與溫暖木色,突顯海景優勢與日常生活質感。
客廳與飯廳以一線貫通,利用燈槽環繞整個客飯廳,打造無主燈效果,令天花視覺更簡潔,光線更平均柔和。窗台以木造窗台處理,延伸無印風的自然質感,同時提供坐榻與展示空間,讓海景成為室內的焦點背景。
廚房及廁所採用簡約現代風格,線條俐落、收納充足,並以日式風格門設計,從客飯廳望向廚廁時,仍能保持整體無印風的一致感。廚房設備齊全,包括雪櫃、洗衣機及蒸焗爐,櫃體規劃有序,方便日常烹飪與整理。
浴室配置浴缸及浴屏,實現乾濕分離,兼顧浸浴享受與清潔便利。用色以深色系為型格為主,配合簡潔線條,營造清爽放鬆的洗浴空間。
主人房以實用收納為核心,設有大容量衣櫃、梳妝枱及睡床,動線順暢,保持空間整潔。睡床採用油壓儲物床設計,大幅提升儲物能力,方便收納季節性衣物及家品,同時維持房間的簡約視覺效果,延續全屋無印風格。
