屯門兆禧苑樂禧閣

原平面圖

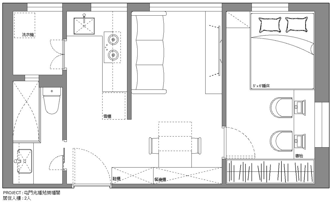
新佈局圖
單位地址: 屯門兆禧苑樂禧閣
單位面積: 363呎
居住人數: 2人
此設計方案以二人新婚居住為前提,強調實用性與空間感,透過調整間隔與佈局,打造更舒適的日常生活動線。整體方向著重擴大主人房、開放式廚房及客飯廳的視覺延伸,營造通透明亮的居家氛圍。
戶主兩夫婦喜愛打機,房內除了有足夠收納位置外,更希望有一張大型電腦枱可一齊玩樂。主人房透過改動原有間隔,適度向外擴展,預留更寬敞的活動範圍,床位以貼牆或靠窗擺放為主,騰出中央走動空間,同時預留位置放置衣櫃及電腦枱 ,兼顧休息與工作需要。
原有獨立廚房改為開放式設計,與客飯廳連成一體,擴大視線距離,令整體空間感大幅提升。客飯廳一體式展現,自然光滲透整個客飯廳有助加強明亮度與開揚感。
客飯廳及主人房選用現成傢俬,為了活用空間,設計佈局上透過尺寸及擺位控制,達致「少而精」的效果。餐桌可選擇摺疊式或可伸縮設計,平日節省空間,需要招待親友時再打開使用。鞋櫃與收納櫃建議合併為一體,集中於一面牆,減少零散家具,令視線更集中且開闊。
