天水圍嘉湖山莊賞湖居

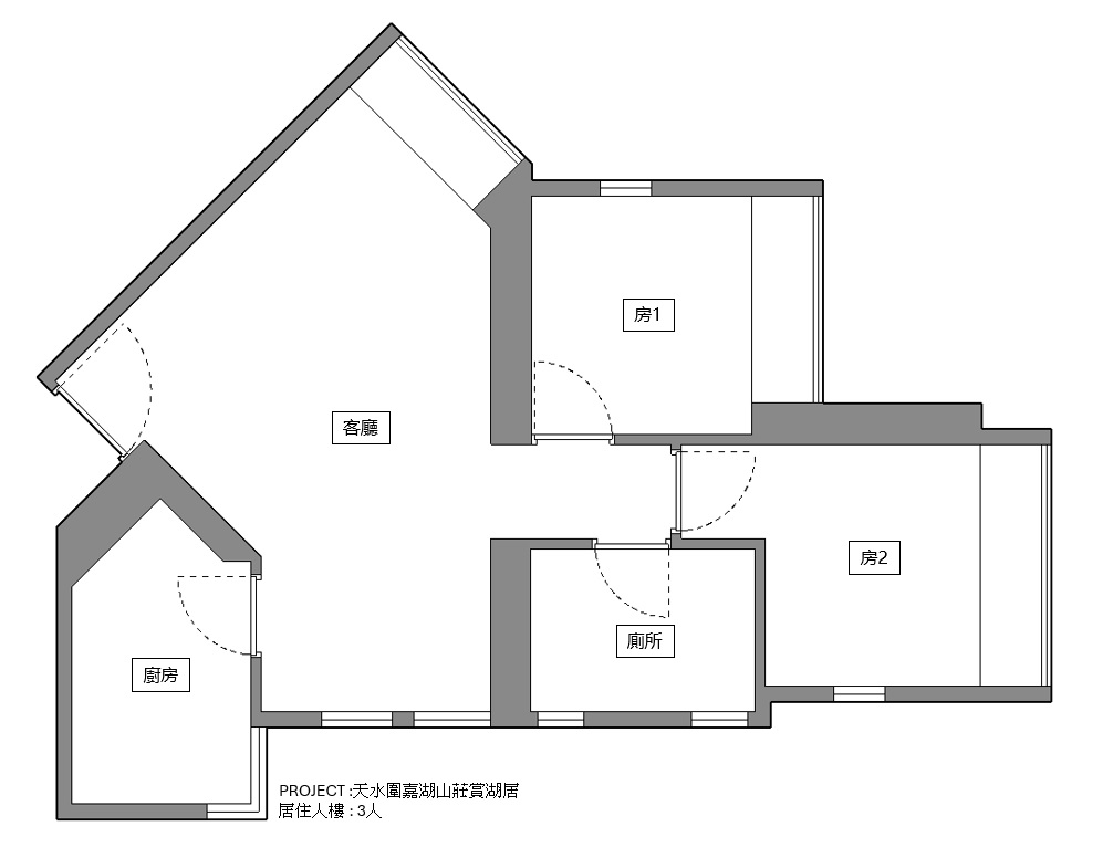
原平面圖

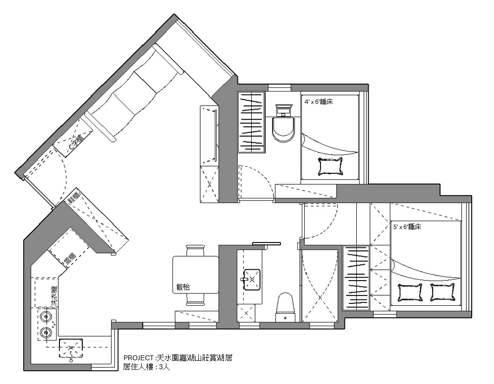
新佈局圖
單位地址: 天水圍嘉湖山莊賞湖居
單位面積: 448呎
居住人數: 3人
以實用為主軸,整體設計著重收納、動線與空間感,為三口之家打造舒適而具功能性的居住環境。透過開放式佈局與靈活傢俬配置,令每一平方呎都得到充分運用,同時保持簡潔美觀。
廚房門口加闊,與飯廳連成一致,形成開放式空間,提升採光與通風效果。連貫的設計令備餐、用餐及交流更順暢,視覺上亦拉闊空間感,營造明亮寬敞的家居氛圍。
主人房採用地台床設計,將床架與收納結合,於地台內加入抽屜或上揭式儲物空間,適合收納季節性衣物、行李箱及雜物。簡約線條配合柔和色調,營造舒適、整潔且具私隱度的休息空間。
小孩房以粉紅色牆身作為主調,配搭白色或木色傢俬,營造溫馨甜美的氛圍。採用上床下櫃設計,上層為睡眠區,下層結合衣櫃、書桌及收納櫃,大幅增加儲物位置,同時預留活動及學習空間,伴隨孩子成長。
整體設計以實用為核心,兼顧美感與舒適度,為家庭打造井井有條又充滿溫度的居所。
