住靚D家居設計
首頁
服務範疇
項目流程
作品
新界區
大埔昌運中心
屯門良景邨良華樓
深井浪濤灣
沙田廣場
元朗柏麗豪園
荃灣綠楊新村
將軍澳日出康城
將軍澳維景灣畔
深井麗城花園
屯門兆禧苑樂禧閣
屯門良景邨良萃樓
天水圍嘉湖山莊賞湖居
屯門兆畦苑兆富閣
屯門兆禧苑順禧閣
九龍區
何民田俊民苑
尖沙咀君臨天下
長沙灣昇悅居
彩雲村日月樓
紅磡黃埔新村
香港區
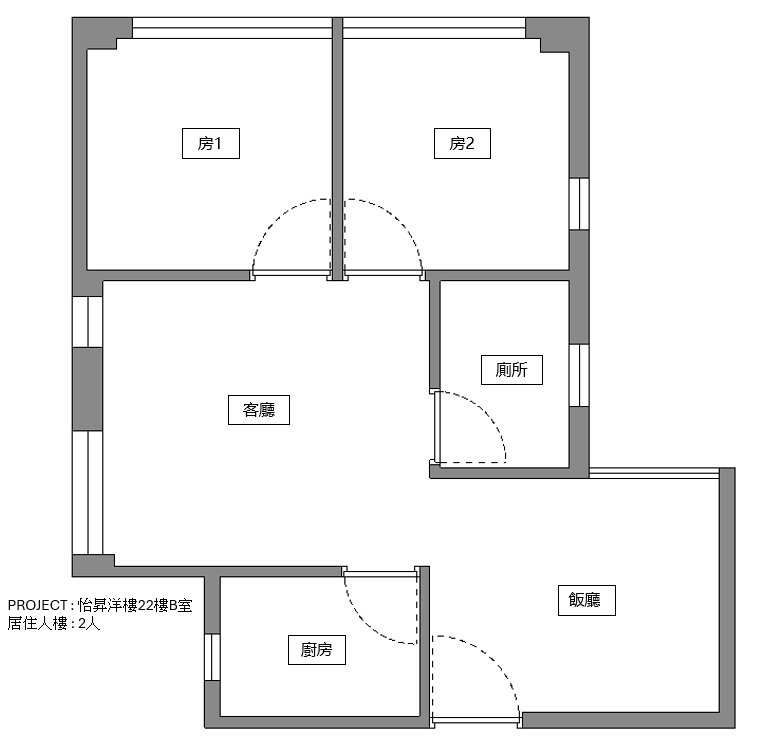
北角怡昇洋樓
西灣河東熹苑
關於GLD
聯絡
更多
選單
北角怡昇洋樓
原平面圖
新佈局圖
單位地址:北角怡昇洋樓
單位面積:呎
居住人數:2人
我們使用了 cookies 來確保我們網站的運作正常與安全性,並為您提供最佳的使用體驗。
僅接受必要的
接受全部
進階設定
您可以在此自訂您的 cookie 偏好。啟用或關閉以下這些類別,並儲存您的選擇。
必要 cookies
必要 cookies 對於網站與註冊過程的安全性和正確運作都至關重要。
功能性 cookies
功能性 cookies 會儲存並啟用您在網站上的 cookie 偏好。
效能性 cookies
效能性 cookies 能夠幫助觀察網站的表現狀況。
行銷性/第三方 cookies
行銷性 cookies 能夠讓我們衡量與分析網站的成效。