荃灣綠楊新村

原平面圖

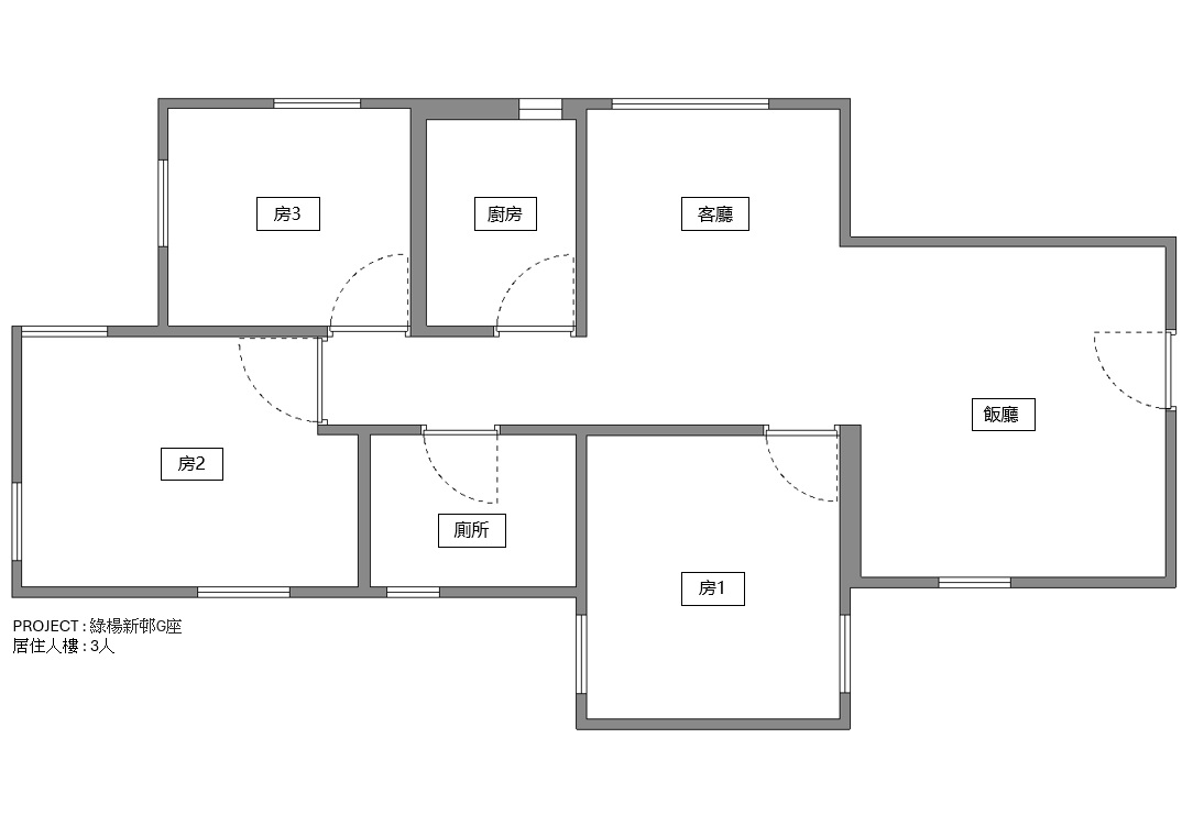
新佈局圖
單位地址:荃灣綠楊新村 G 座
單位面積:582 呎
居住人數:4 人
本單位為三口之家迎接新生兒而規劃,設計需兼顧收納與活動空間。整體以低調輕奢風為主,營造舒適有品味的氛圍,並預留安全寬敞的兒童活動區,配合日後成長及親子互動。
玄關設置兩組全高櫃,一組為大容量鞋櫃,滿足日常及季節性鞋履收納;另一組為儲物及展示櫃,結合封閉櫃體與開放層架,可收納雜物並重點展示 LEGO 作品,成為入門焦點。
展示櫃以俐落線條配合柔和燈光,加入金色條子及金色玻璃框,突顯輕奢質感與收藏細節,令展示品更具層次,同時保持玄關整齊有序。
客廳天花訂製方形燈槽,以間接照明營造柔和光感並提升層次。燈槽線條與電視牆呼應,配合石材、木紋及金屬線條,塑造現代輕奢效果,同時保留寬敞地面,方便小孩活動。
電視牆加入隱藏暗門,門片與牆身採用相同物料及分縫處理,減少視覺切割,令空間更完整大氣,同時隱藏走廊。暗門後方通往主人房及未來小孩房,兼顧實用與美觀。
重整房間間隔後,優化動線與採光,並將暗門設計延伸至餐邊櫃,形成一體化牆面。餐邊櫃結合收納與展示,可擺放餐具、酒具及裝飾品,配合金屬、玻璃及暖色燈光,強化輕奢氛圍。
整體設計在收納、展示與親子活動空間之間取得平衡,為三口之家打造兼具品味與實用的輕奢家居,讓小孩在舒適安全的環境中成長,同時保留戶主對 LEGO 興趣及生活質感的展現。
