深井麗城花園

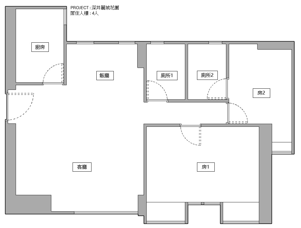
原平面圖

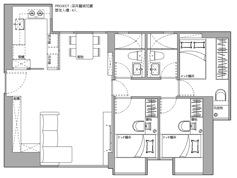
新佈局圖
單位地址: 深井麗都花園4座
單位面積: 657呎
居住人數: 4人
空間以特色牆配合隱藏暗門作為視覺焦點,將收納與動線巧妙結合,營造簡潔利落的室內風格。暗門與牆面材質一致,關上時形成完整背景牆,打開則連接不同功能空間,兼具美觀與實用性。
廚房採用半開放式設計,除了以玻璃趟窗作為分隔,更內藏鞋櫃於玻璃趟門。需要專注烹飪時可關上,減少油煙及噪音;不用時則可完全打開,連接客飯廳,瞬間變身為吧枱式交流空間,提升互動與採光。
廚房櫃體內藏洗衣機及乾衣機,將家電巧妙隱藏,保持整體視覺整潔,同時提升收納效率,適合重視生活質感與實用性的現代家庭。
單位設有兩個不同風格的浴室,滿足不同心情與使用情境。輕奢風以金屬細節及精緻配件打造高級酒店般的沐浴體驗,營造放鬆舒適的氛圍。
另一間則走型格風格,運用深色石材、俐落線條及對比材質,呈現個性鮮明的現代感,適合喜歡時尚與獨特品味的用家。兩種風格互相呼應,為整體家居增添層次與故事感。
