屯門良景邨良萃樓

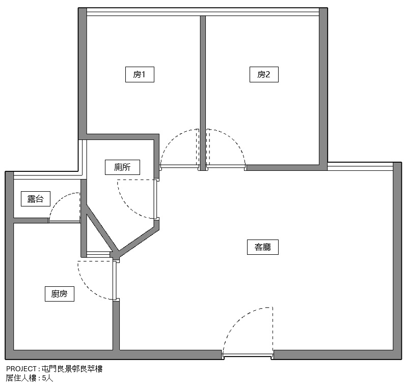
原平面圖

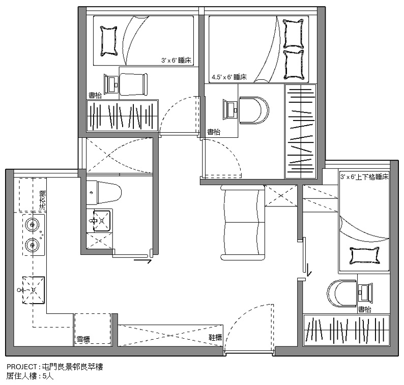
新佈局圖
單位地址: 屯門良景邨良萃樓
單位面積: 443呎
居住人數: 5人
單位為和諧式Y型結構,戶主二人與三位小朋友同住,以實用、安全及長遠規劃為設計重點。整體以現成傢俬為主,透過專業佈局及動線重整,為小朋友不同成長階段預留充足活動及學習空間,同時保持家居整潔有序。
原有獨立廚房改為開放式設計,廚櫃以一致物料及色調貫穿,令視覺更開揚連貫,增強空間感。開放式廚房與客飯廳融為一體,方便照顧小朋友之餘,亦提升家庭互動及日常用餐體驗。
原本五角型廁所改為方型佈局,令活動空間明顯擴大,出入更安全舒適。大廈總渠檢查口由廚房移至廁所內,既保留維修方便性,又令開放式廚房外觀更整潔統一,整體設計更具一致性。
三間房間按不同成員需要度身規劃,除床及衣櫃外,均預留書枱位置,方便小朋友由幼兒期過渡至學齡及青少年階段。透過精準尺寸及傢俬擺位,兼顧收納、閱讀及休息功能,打造多功能成長型房間。
客廳以油漆營造特色牆效果,利用色塊及層次感突顯空間焦點,取代過多造型傢俬,減少壓迫感。簡約而有個性的設計,既易於日後更換風格,又能配合全屋開放式佈局,營造溫暖舒適的親子家居。
