屯門兆禧苑順禧閣

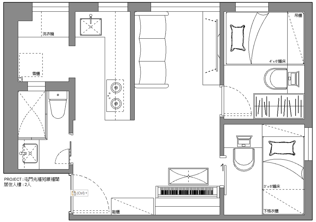
原平面圖

新佈局圖
單位地址: 屯門兆禧苑順禧閣
單位面積: 415呎
居住人數: 2人
單位為母子二人居住,設計重點放在營造舒適實用的學習與生活空間,同時保持開揚感與美觀度。整體以簡潔線條及淺色調為主,令細單位亦能感覺寬敞明亮。
為提升空間感與採光,原有廚房改為開放式設計,並將露台位置納入廚房的一部分,形成一致而連貫的工作檯面與收納佈局。露台區預留足夠位置擺放洗衣機及雪櫃,洗衣機靠近窗邊,上方可設晾衣位置,既實用又不影響室內觀感。
客飯廳除基本梳化、餐桌及影音設備外,特別預留一個鋼琴角落,方便兒子練琴。鋼琴位置緊貼客廳,客廳窗口讓自然光灑入室內,營造帶有詩意的學習與音樂氛圍,同時保持動線順暢,不會令空間顯得擁擠。
兩間睡房大小不一,較大的房間規劃為兒子房,重點在於提供充足的學習及收納空間。傢俬設計採用上床下櫃及書枱組合:
- 上層為睡床,善用垂直空間
- 下層設大容量衣櫃及儲物櫃
- 靠窗位置設書枱,提供明亮舒適的學習環境
此佈局令房間在有限面積內同時兼顧睡眠、學習與收納,保持整潔有序。
整體設計以實用為本,配合母子二人的生活習慣與需要,從開放式廚房到鋼琴角落,再到兒童房的上床下櫃設計,每一個細節都著重空間感、採光及收納,打造出一個既溫馨又具學習氛圍的親子家居。
