大埔昌運中心

原平面圖

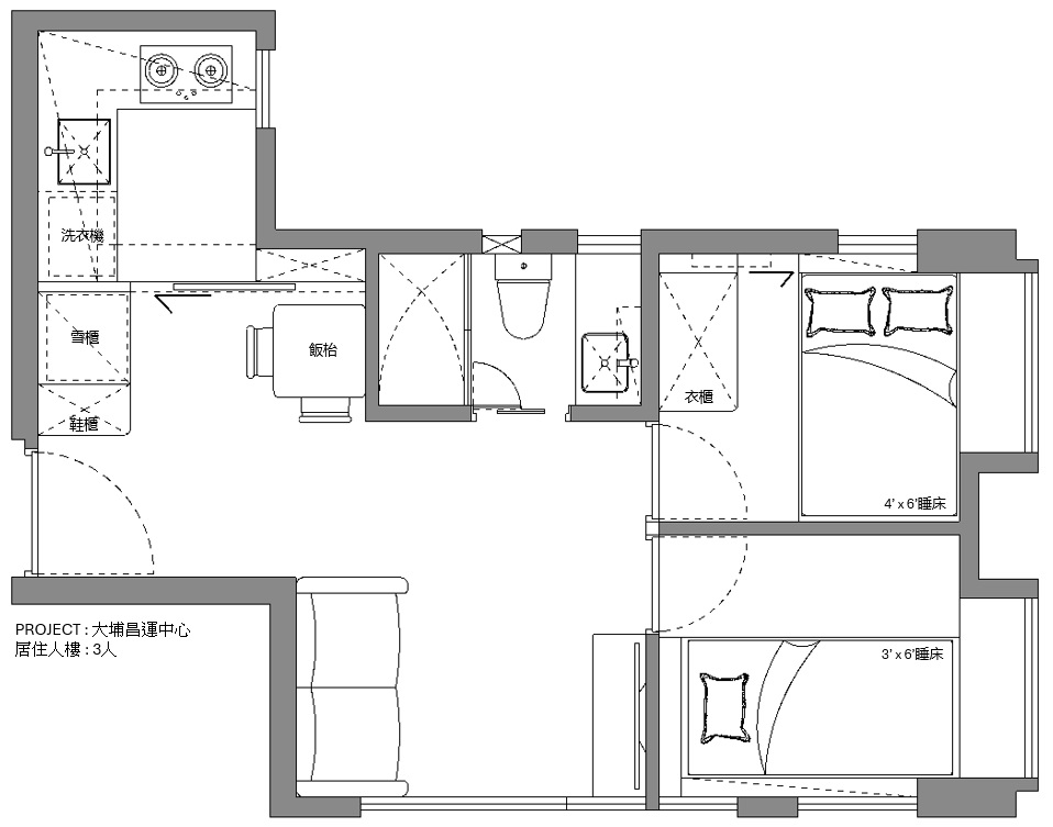
新佈局圖
單位地址: 大埔昌運中心2座
單位面積: 342呎
居住人數: 3人
戶主希望在有限面積內兼顧起居活動與收納,對空間運用及動線有更高要求。
單位屬「呂字廳」,間隔清晰,客飯廳狹長,動線簡潔;惟廚房收納及檯面不足,難以容納日常鍋具電器及乾糧,實牆亦削弱視野與空間感,令客飯廳更顯侷促。戶主曾考慮開放式廚房以增強空間感及互動,但擔心油煙及氣味影響客廳休息及長時間煮食或招待親友時的空氣質素與舒適度。
設計由調整廚房間隔入手,重規劃牆身及出入口,騰出更靈活佈局,並利用不對稱空間增設儲物櫃及高身收納,容納小家電、調味料及日用品,減少檯面雜亂。同時採用廚房玻璃門,在封閉與開放之間靈活切換:煮食時阻隔油煙氣味,保持客飯廳空氣清新;玻璃通透感延伸視覺,讓自然光穿透廚房與客廳,提升開揚感;儲物櫃亦兼具展示功能,可擺放裝飾品及餐具,為家居增添層次與個人風格。
戶主期望回家後享有放鬆舒適的休息體驗,因此以日系簡約為主調,以淺木色配白色營造柔和自然基調,配合暖色燈光及線條簡潔的傢俬,減少多餘裝飾,令視覺更清爽。整體氛圍溫暖安靜而不壓迫,既適合一家人在客廳輕鬆相聚,亦能在夜晚營造靜謐環境,讓身心於繁忙都市中真正放鬆。
